Căn hộ nằm ở tháp Central 3 khá yên tĩnh và thoáng mát. Vị trí thuận lợi, nằm cạnh trường Vinchool giúp con trẻ thuận tiện đi học. Đồng thời, tháp Central 3 nằm gần đường Nguyễn Hữu Cảnh, dễ dàng di chuyển đến trung tâm thành phố và các quận lân cận.
Được thiết kế theo phong cách kiến trúc hiện đại trang bị đầy đủ nội thất hoàn hảo cho cuộc sống tiện nghi. Căn hộ Vinhomes nằm ở tầng cao tháp Central 3, tầm nhìn thoáng mát về khu vực Bình Thạnh, khu căn hộ The Manor. Căn hộ được chủ nhà đầu tư khá tỉ mỉ từ thiết kế đến nội thất mang đến không gian sống hiện đại, đầy sang trọng.
Khu Central đã bàn giao cho cư dân vào cuối năm 2016, cộng đồng dân cư đã hình thành. Các tiện ích nội khu Central 3 được xây dựng khá đầy đủ từ hồ bơi ngoài trời dành riêng cho cư dân Central 3, hầm để xe, lounge, lễ tân, hệ thống camera 24/7, hệ thống báo khói, báo cháy, đầu phun chữa cháy tự động tại hành lang các căn hộ.
Căn hộ nằm ở tầng cao tháp Central 3 thoáng mát, view nhìn về khu vực Bình Thạnh và khu căn hộ The Manor. Căn hộ mang lối thiết kế hiện đại, nội thất chất lượng hài hòa với những đường nét nghệ thuật độc đáo.
Khu căn hộ Vinhomes Central Park nằm ngay mặt tiền đường Nguyễn Hữu Cảnh. Vị trí thuận lợi, dễ dàng đến trung tâm thành phố và các quận lân cận chỉ chưa đầy 5 phút. Vinhomes Central Park còn liền kề với ga số 2 tuyến Metro Bến Thành-Suối Tiên giúp cho việc đi lại thêm dễ dàng hơn.
Central 3 đã bàn giao vào cuối năm 2016. Cộng đồng cư dân đã hình thành với đa phần những gia đình trẻ, hiện đại và văn minh. Các tiện ích nội khu với chất lượng 5 sao đáp ứng đầy đủ các nhu cầu của cư dân.
Trường quốc tế Vinschool ngay nội khu dự án. Ngoài ra, Vinhomes Central Park còn gần với các trường học trọng điểm trong khu vực như trường quốc tế song ngữ Wellspring 1,2km, trường quốc tế Sài Gòn Pearl 1,6km, ĐH Công nghệ Tp.HCM HUTECH 2km, ĐH Ngoại thương cở sở 2 (2,5km).
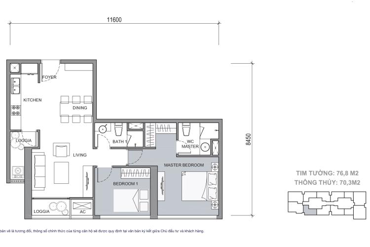
Căn hộ 2 phòng ngủ
Căn hộ hướng Tây Nam
Căn hộ tầng cao
C3 Vinhomes Central Park
Mua căn hộ Vinhomes 2 phòng ngủ
Cho thuê căn hộ Vinhomes 2 phòng ngủ