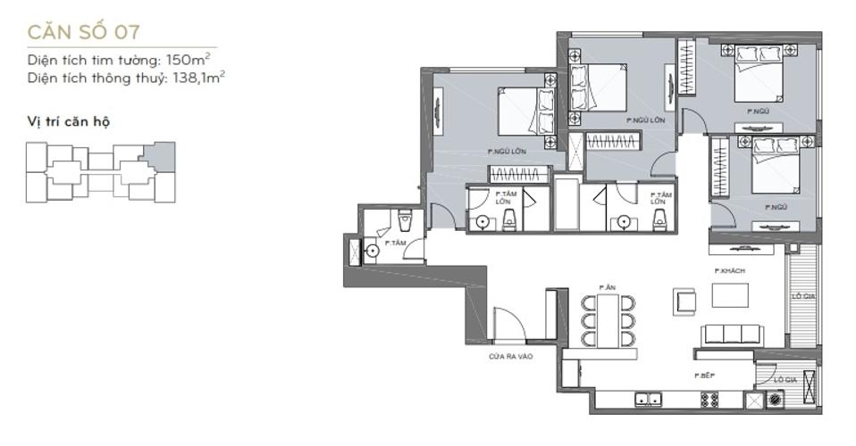
Căn hộ cao cấp Vinhomes quận Bình Thạnh, diện tích sử dụng 138.1m2 gồm 4 phòng ngủ rộng, 3WC tiện nghi. Tầng cao Landmark 6, ban công rộng hướng Đông Nam view thoáng, ít nắng. Căn hộ hiện đang để trống, chủ nhà đã dọn dep sạch sẽ, tiện thi công. Toàn bộ căn hộ sử dụng tông màu trắng chủ đạo vừa giúp căn hộ trông rộng hơn, vừa mang đến cảm giác tươi mới.
Khu căn hộ được quản lý và vận hành bởi chính chủ đầu tư nên chất lượng dịch vụ rất tốt, an ninh, yên tĩnh thừa hưởng những tiện ích sống đồng bộ. Các căn hộ thuộc dự án luôn thu hút nhiều khách hàng thuê ở đặc biệt nhờ vị trí đẹp, gần sông, đầy đủ các tiện ích nội khu, trong khu dân cư cao cấp.
Căn hộ Vinhomes Quận Bình Thạnh thiết kế 4 phòng ngủ, 3WC. Căn nằm ở tầng cao Landmark 6, view hướng Đông Nam. Nhà sạch sẽ, thoáng mát, nội thất cơ bản, có thể vào ở ngay. Trong khu an ninh, yên tĩnh, nhiều tiện ích.
Nằm trên trục đường chính Nguyễn Hữu Cảnh, dễ dàng kết nối với khu vực xung quanh thành phố. Chỉ mất khoảng 10 phút đi xe đến trung tâm Quận 1, 30 phút đến sân bay quốc tế Tân Sơn Nhất.
Hướng đến xây dựng một cộng đồng cư dân gắn kết với phong cách sống thân thiện, nâng cao giá trị cuộc sống cả về cơ sở vật chất lẫn tinh thần.
Trường quốc tế Vinschool ngay nội khu dự án. Ngoài ra, khu căn hộ còn gần với các trường học trong khu vực như trường quốc tế Wellspring 1,2km, trường quốc tế Sài Gòn Pearl 1,6km, ĐH Công nghệ Tp.HCM HUTECH 2km.
Căn hộ 4 phòng ngủ
Cho thuê căn hộ Vinhomes
Căn hộ view sông
Hướng Đông Nam