-
Loại hình
-
Phòng ngủ
-
Phòng tắm
3
-
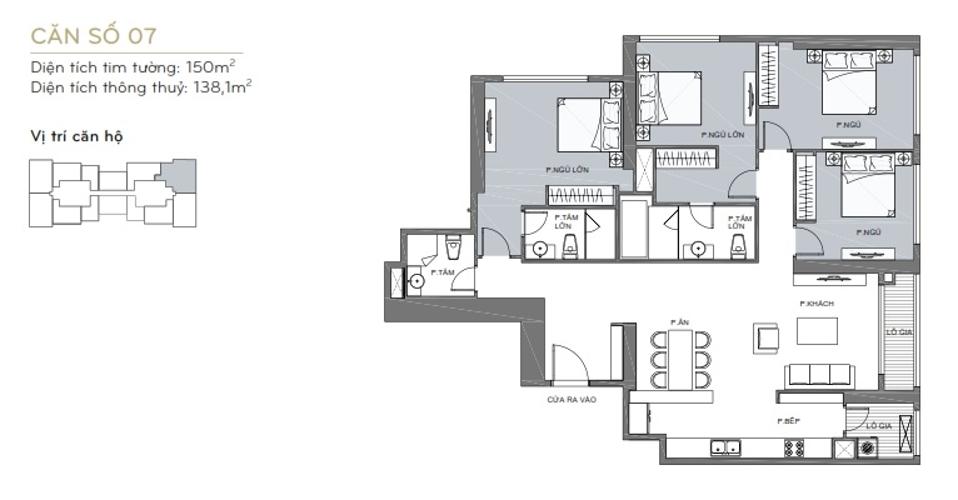
Diện tích
138.1 m²
-
Tình hình nội thất
Đầy đủ nội thất
-
Dự án
-
Giá thuê
58.3 tr/thángVND
Cho thuê căn hộ Vinhomes 4 phòng ngủ, thích hợp với gia đình nhiều thế hệ cùng chung sống. Căn hộ với thiết kế hiện đại, cửa kính lớn được bố trí giúp đón gió và ánh sáng tự nhiên, tầng trung, view thoáng. Các phòng ngủ lót sàn gỗ cao cấp, đầy đủ thiết bị vệ sinh ở phòng tắm. Phòng khách với không gian thoáng đãng và rộng rãi, tông trắng chủ đạo tạo nên vẻ tươi mới và trẻ trung. Khu căn hộ được quản lý và vận hành bởi chính chủ đầu tư nên chất lượng dịch vụ rất tốt, an ninh, yên tĩnh thừa hưởng những tiện ích sống đồng bộ. Các căn hộ thuộc dự án luôn thu hút nhiều khách hàng thuê ở đặc biệt nhờ vị trí đẹp, gần sông, đầy đủ các tiện ích nội khu, trong khu dân cư cao cấp.
Loại hình
Phòng ngủ
Phòng tắm
3
Diện tích
138.1 m²
Tình hình nội thất
Đầy đủ nội thất
Dự án
Giá thuê
58.3 tr/thángVND
Liên hệ tư vấn
Chuyên viên đã sẵn sàng hỗ trợ!
Đặc điểm nổi bật
Mô tả vị trí
Cộng đồng dân cư
Về giáo dục
Tìm kiếm theo từ khoá
Vinhomes Central Park
Với tổng diện tích lên tới 43,91ha, sở hữu mặt tiền trải dài hơn 1km bên bờ sông Sài Gòn. Dự án Vinhomes Central Park mang đến cho khách hàng một không gian sống hoàn hảo, hòa hợp với thiên nhiên cùng tiêu chuẩn sống chất lượng 5 sao, nơi tạo dựng những giá trị đích thực của cuộc sống – xứng tầm khu đô thị hiện đại và đẳng cấp.
Trường học
Bệnh viện
Ăn uống
Mua sắm
Liên hệ tư vấn
Chuyên viên đã sẵn sàng hỗ trợ!
Tư vấn hoàn toàn miễn phí
Mã nhà đất ABT21615
Gọi chuyên viên ngay Liên hệ qua ZaloMã nhà đất ABT21615
Hiệu quả hơn với trình diễn 3D nhập vai
Công nghệ 3D nhập vai của Rever mang lại trải nghiệm cho khách hàng độ tin cậy tuyệt đối khi xem nhà trực tuyến ở tất cả mọi nơi, bất cứ khi nào.
Kết hợp đội ngũ nhân viên được đào tạo chuyên nghiệp, tính năng này đã giúp cho tốc độ bán nhanh hơn gấp đôi so với thị trường.
Cảm ơn bạn đã gửi phản hồi cho Rever, ý kiến của bạn sẽ giúp Rever.vn từng bước nâng cao chất lượng sản phẩm. Mọi thắc mắc nếu có xin vui lòng liên hệ hotline (24/7): 1800 234 546