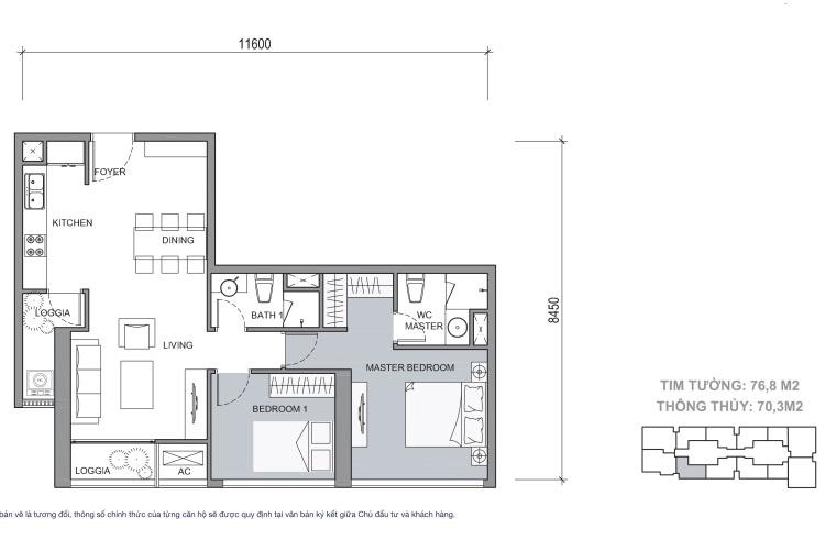
Căn hộ Vinhomes 2 phòng ngủ, nằm ở tầng cao Central 3, hướng Tây. Căn hộ với lối thiết kế theo phong cách hiện đại, trang bị nội thất trẻ trung kết hợp màu sắc tươi mới, mang đến không gian sống năng động và thoải mái. Phòng khách được đặt ngay vị trí trung tâm của căn hộ, hướng sáng tốt nhờ cửa kính lớn. 2 phòng ngủ tuy nhỏ gọn, nhưng vẫn đem lại không gian thoải mái và ấm cúng khi được lót sàn gỗ cao cấp.
Đi kèm theo đó là những tiện ích nội khu cao cấp được chủ đầu tư xây dựng khá đầy đủ mang đến cuộc sống hiện đại, tiện nghi cho bạn và gia đình. Các hạng mục này trực thuộc Vingroup, do Vingroup xây dựng và quản lý.
Căn hộ có thiết kế hiện đại, cửa kính lớn đón sáng, view hướng Tây. Các tiện ích nội ngoại khu nằm khá gần căn hộ mang đến cho chủ nhân căn hộ cuộc sống thoải mái, đầy đủ tiện nghi.
Khu căn hộ nằm ở mặt tiền đường Nguyễn Hữu Cảnh nên rất thuận tiện di chuyển đến trung tâm Quận 1 và các quận lân cận trung tâm. Từ khu căn hộ tới sân bay Tân Sơn Nhất cũng chỉ mất khoảng 30 phút đi xe.
Khu dân cư văn minh, hiện đại với đa phần người ở là người có trí thức cao và các hộ gia đình trẻ.
Trường quốc tế Vinschool ngay nội khu dự án. Ngoài ra, khu căn hộ còn gần với các trường học trong khu vực như trường quốc tế Wellspring 1,2km, trường quốc tế Sài Gòn Pearl 1,6km, ĐH HUTECH TPHCM 2km.
Bán căn hộ Vinhomes
Căn hộ 2 phòng ngủ
Cho thuê căn hộ hướng Tây
Căn hộ tầng cao